EFH, Ortsrandlage von Kinsau (mit ELW)



















Objektart
Haus
Objekttyp
Einfamilienhaus
Vermarktungsart
Kauf
PLZ
86981
Ort
Kinsau
ImmoNr
2026-00133
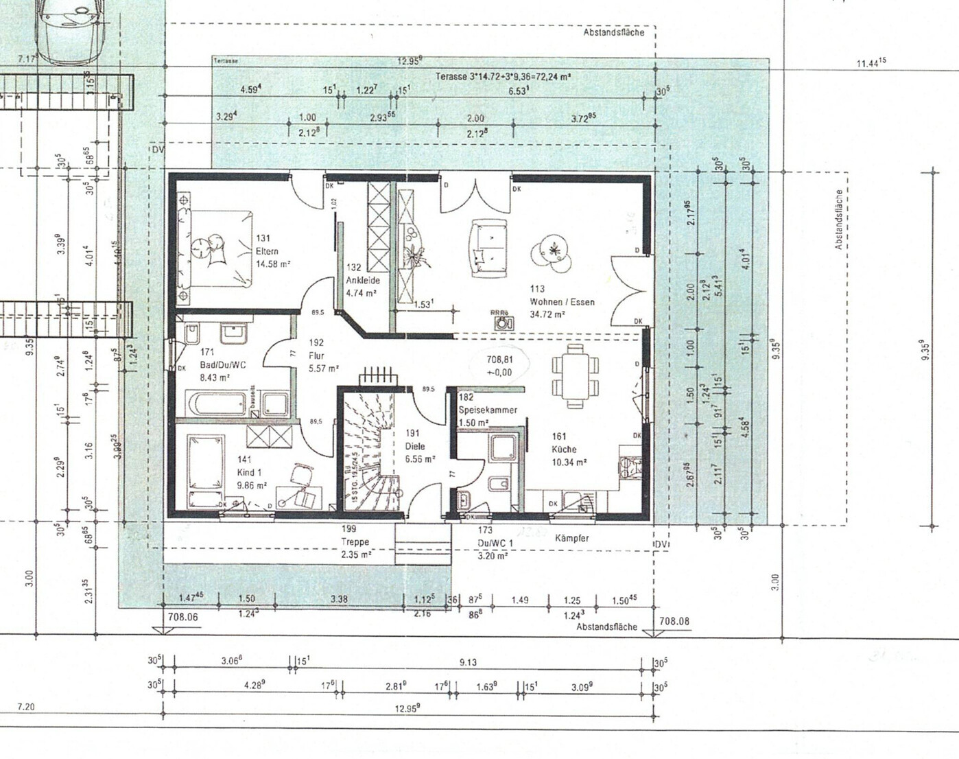
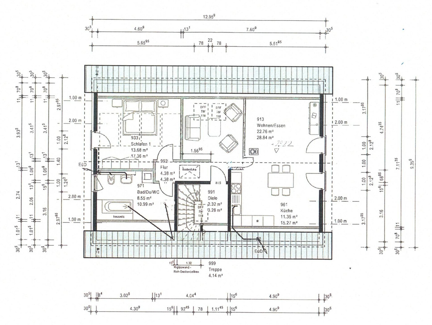
Wohnfläche
ca. 162 m²
Grundstücksgröße
ca. 763 m²
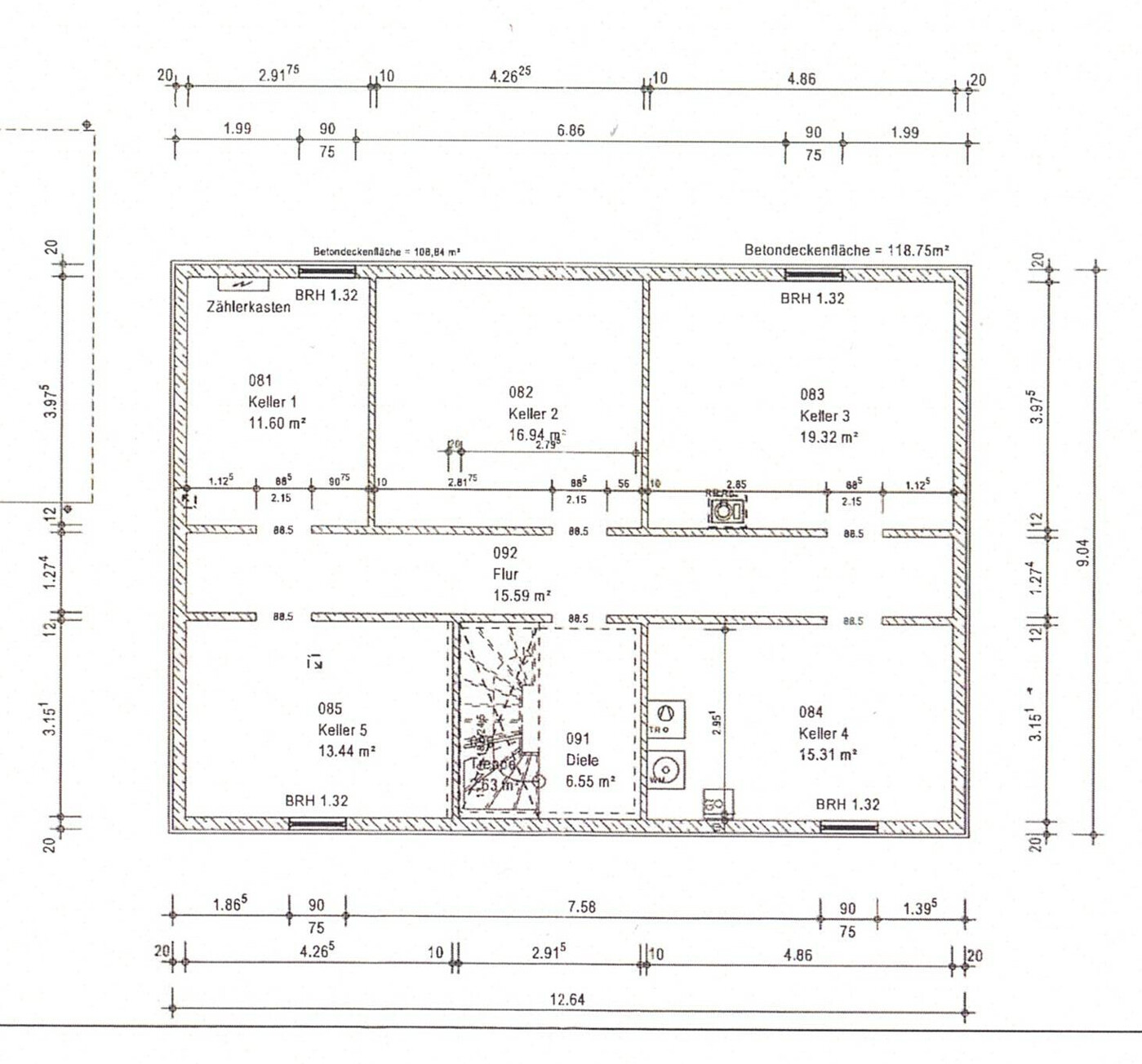
Nutzfläche
ca. 102 m²
Anzahl Zimmer
6
Anzahl Badezimmer
2
Kaufpreis
720.000,00 €
Baujahr
2010
Endenergieverbrauch
64,1 kWh/(m²a)
Energieausweis
Verbrauchsausweis
Energieausweis gültig bis
08.01.2036
Energieeffizienzklasse
B
Außen-Provision
2,975 % inkl. Mehrwertsteuer
Beschreibung
Dieses freistehende Einfamilienhaus ...> liegt naturnahe
> ist familienfreundlich
> wirkt sehr weitläufig, da architektonisch vorteilhaft geschnitten
> und verfügt über viel Licht in allen Räumen
Das DG ist abteilbar zu einer eigenständigen und vermietbaren Einliegerwohnung.
Die Verkehrsanbindung durch B17 an Landsberg am Lech und Schongau mit ihren idyllischen Altstädten ist ideal und Sie haben einen hohen Freizeitwert, Berg-Nähe und vieles mehr ...
Lage
> am westlichen Ortsrand von Kinsau gelegen> erfüllt alle Freizeitwünsche für Outdoor-Fans: Wandern, Schwimmen und Segeln im Sommer im wunderschönen Alpenvorland, Ammersee und Lech, Skifahren und Snowboarden im Winter; ein reiches Wegenetz für Nordic Walken, Joggen und Langlaufen finden Sie vor der Haustür.
> städtisches Flair bieten Landsberg am Lech als auch Schongau mit wunderschönen Altstädten, Cafés, Restaurants und Geschäften, eingerahmt von vielfältigen Kulturangeboten.
> Kindergarten sowie die Grundschule in Kinsau sind attraktiv für junge Familien, weiterführende Schulen gibt es in Schongau und Landsberg, erreichbar durch eine gute Infrastruktur von Schulbussen und öffentlichen Verkehrsmitteln.
Ausstattung
> neue PV-Anlage 2025 (13,6 kW)> Speicher (11 kW)
> Solarthermie
> DG als eigene Wohnung abteilbar
> 2 Bäder
> Schwedenofen im teilausgebauten UG
> 1 Garage, 1 Carport, 2 Stellplätze
> Wallbox
> Holzständerbauweise
> u.v.m.
Sonstige Angaben
> Als Makler sind wir gemäß Gesetz über die Verteilung der Maklerkosten § 656 BGB für Verkäufer und Käufer in gleicher Höhe provisionspflichtig tätig.> Alle Angaben, auch die Pläne beruhen auf den Angaben des Eigentümers und wurden von uns nicht nachgeprüft. Für Abweichungen jeglicher Art wird deshalb keine Haftung übernommen.
> Widerrufsbelehrung wurde übermittelt.
> Aufgrund des GwG (Geldwäschegesetz) sind wir als Makler dazu verpflichtet, die Identität der Interessenten nachzuweisen. Bitte bringen Sie deshalb eine Ausweiskopie zur Besichtigung mit. Vielen Dank für Ihr Verständnis!
> Energieausweis wird bei Erstbesichtigung vorgelegt.
> Datenschutzhinweis gem. DSGVO: Ihre Angaben/Daten werden gemäß den Bestimmungen der DSGVO und des Bundesdatenschutzgesetzes streng vertraulich behandelt.
> Besichtigungen nur nach Terminvereinbarung gemeinsam mit uns!
> Unser kostenfreier Service: Wenn Sie sich mit dem Gedanken tragen, Ihre eigene Immobilie zu verkaufen, bewerten wir als PMA Geprüfte Immobilienbewerter Ihr Objekt fachkundig nach ImmoWertV 2021.
Mit freundlichen Grüßen
Gisela von Quast, Tel: 08196 - 1769
Deine Anfrage zu der Immobilie „EFH, Ortsrandlage von Kinsau (mit ELW)“ (2026-00133)
Seiten: 1




