EFH mit ELW (A+ Energieeffizienzklasse)
Verkauft






















Objektart
Haus
Objekttyp
Einfamilienhaus
Vermarktungsart
Kauf
PLZ
82269
Ort
Geltendorf / Walleshausen
ImmoNr
2026-00136
Wohnfläche
ca. 190 m²
Grundstücksgröße
ca. 1.112 m²
Nutzfläche
ca. 120 m²
Anzahl Zimmer
6
Anzahl Badezimmer
2
Kaufpreis
749.000,00 €
Baujahr
1982
Endenergieverbrauch
29,3 kWh/(m²a)
Energieausweis
Verbrauchsausweis
Energieausweis gültig bis
04.02.2036
Energieeffizienzklasse
A+
Außen-Provision
3,57 % inkl. Mehrwertsteuer, fällig bei notarieller Verbriefung
Beschreibung
Die energetisch sehr gute Immobilie (A+) wurde 1982 solide in ortsüblichem Landhausstil errichtet und ist besonders für junge Familien geeignet, die familienfreundliches Wohnen in naturnaher Umgebung suchen. Es kommt auch als Generationenhaus in Frage, denn sowohl im EG als auch im OG befinden sich jeweils eine komplette 3-Zimmer Wohnung (nicht abgetrennt). Der große Garten ist mit vielen Extras liebevoll angelegt.ERDGESCHOSS
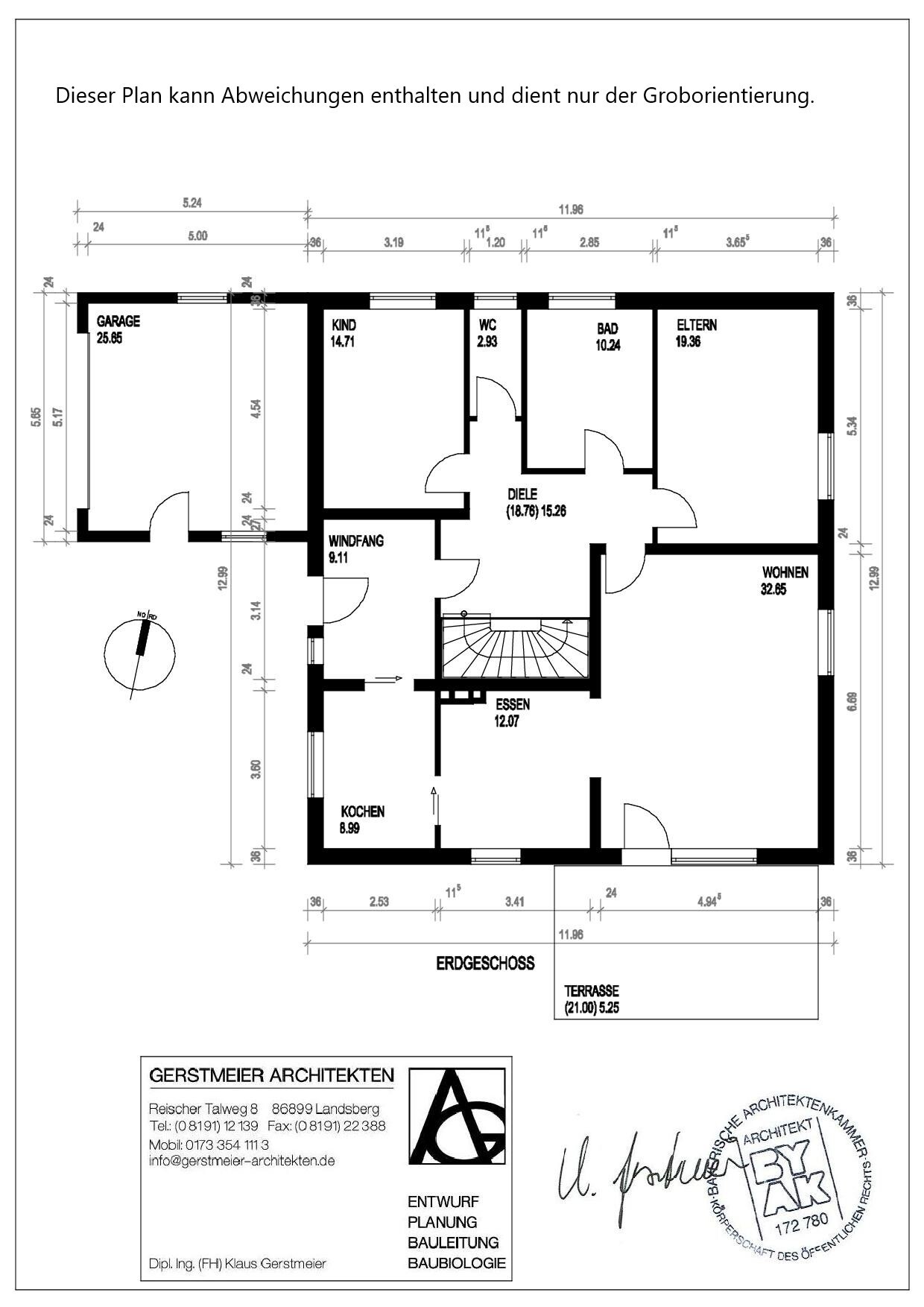
Die großzügig geschnittene EG-Wohnung verfügt über Windfang, eine geräumige Diele und Treppenhaus, einen großen Wohn-Essbereich (ca. 44 m²) mit Zugang zu Terrasse und Garten, zwei Schlafzimmer, Küche, Bad und ein separates Gäste-WC
DACHGESCHOSS
Ebenfalls großzügig geschnitten ist die DG-Wohnung mit einem hell-freundlichen Wohnbereich (ca. 30 m²) mit Zugang zum Balkon mit schönem Ausblick, zwei Schlafzimmer, Wohnküche, Bad, Gäste-WC und Flur/Treppenhaus
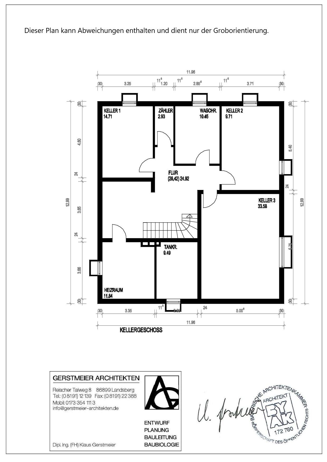
UNTERGESCHOSS
Das Haus ist voll unterkellert und hat neben den üblichen Kellerräumen einen Hobbyraum und eine Sauna mit Wellnessbereich.
AUSSENBEREICH
Doppelgarage, zwei Stellplätze, gemauerter Grillofen, Pavillion, großes Holz-Gartenhaus u. v. m. - liebevoll angelegter Garten
Lage
Walleshausen ist ein ruhig-dörflicher Ortsteil der Gemeinde Geltendorf. Der Gemeindebereich ist aufgrund seiner verkehrsgünstigen Lage mit guter Infrastruktur ein gefragter Wohnort. Die Immobilie liegt in einer ruhigen Wohnstraße.Alle wichtigen Einkaufsmöglichkeiten sowie Kindergärten und Grundschule gibt es in der Gemeinde. Weiterführende Schulen befinden sich in umliegenden Orten (Schulbus).
Die Lage besticht durch ihre Naturnähe und wunderschöne Landschaft (das nahe Fünf-Seen-Land und natürlich der Ammersee) und ist damit perfekt für Freizeitaktivitäten und Erholung.
Die umliegenden Städte wie München, Landsberg am Lech und Augsburg sind mit dem Auto gut erreichbar und vom Bahnhof Geltendorf sind Sie mit der S-Bahn oder Regionalzug in Kürze am Hauptbahnhof München.
Ausstattung
2012 Grundwasser-Wärmepumpe2012 Photovoltaik (10 kW)
2013 Fußbodenheizung komplett
2020 / 2021 neue Fenster & Fliesen in 4 Zimmern
2021 neuer Kachelofeneinsatz
2022 neue Sauna
2023 neuer Wasserkessel
2023 Plattenwärmetauscher
2024 Fassade Neuanstrich
2025 neues Pflaster Hausrückseite
2025 8 neue Photovoltaik-Module
- Pavillion
- Terrasse mit integriertem und gemauertem Grill
- großes Gartenhaus (Wert ca. 20.000 €)
- Doppelgarage plus 2 Stellplätze
- u. v. m.
Sonstige Angaben
> Als Makler sind wir gemäß Gesetz über die Verteilung der Maklerkosten § 656 BGB für Verkäufer und Käufer in gleicher Höhe provisionspflichtig tätig.> Alle Angaben, auch die Pläne beruhen auf den Angaben des Eigentümers und wurden von uns nicht nachgeprüft. Für Abweichungen jeglicher Art wird deshalb keine Haftung übernommen.
> Widerrufsbelehrung wurde übermittelt.
> Aufgrund des GwG (Geldwäschegesetz) sind wir als Makler dazu verpflichtet, die Identität der Interessenten nachzuweisen. Bitte bringen Sie deshalb eine Ausweiskopie zur Besichtigung mit. Vielen Dank für Ihr Verständnis!
> Energieausweis wird bei Erstbesichtigung vorgelegt.
> Datenschutzhinweis gem. DSGVO: Ihre Angaben/Daten werden gemäß den Bestimmungen der DSGVO und des Bundesdatenschutzgesetzes streng vertraulich behandelt.
> Besichtigungen nur nach Terminvereinbarung gemeinsam mit uns!
> Unser kostenfreier Service: Wenn Sie sich mit dem Gedanken tragen, Ihre eigene Immobilie zu verkaufen, bewerten wir als PMA Geprüfte Immobilienbewerter Ihr Objekt fachkundig nach ImmoWertV 2021.
Mit freundlichen Grüßen
Gisela von Quast
von Quast Immobilien
Phone 08196 1769
Deine Anfrage zu der Immobilie „EFH mit ELW (A+ Energieeffizienzklasse)“ (2026-00136)
Seiten: 1




